Eckdaten
Kategorie
Dachform und Fläche
m2 bebaute Fläche
77.38 m2 Erdgeschoss
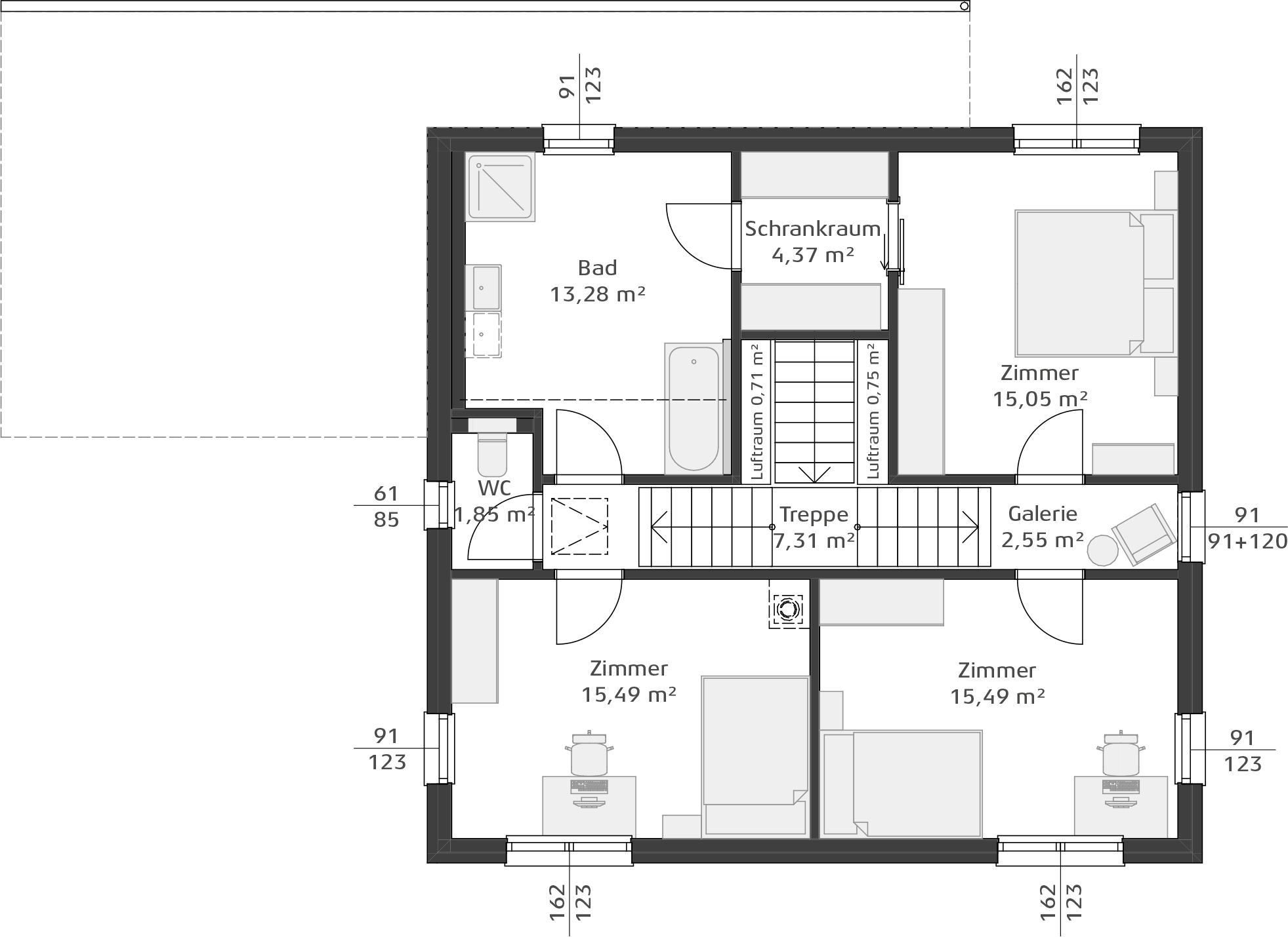
76.64 m2 Obergeschoss
______________________________
m2 Nettogrundrissfläche
76.64 m2 Obergeschoss
______________________________
m2 Nettogrundrissfläche
Flächenberechnung laut Ö-Norm B 1800, für Deutschland DIN 277
Was spricht für uns?
Informieren Sie sich über die Vorteile, die HARTL HAUS als Qualitätsführer im Fertighausbau auszeichnen!
Grundrisse
Gefällt Ihnen, was Sie sehen?

Besonderheiten
Imposanter Eingangsbereich
Treppe separiert das Obergeschoss in zwei Bereiche
EXTRA ZIMMER IM EG
Flexibel nutzbar als Büro etc.
Drei Schlafzimmer
Drei gleichwertige Kinder-/Schlafzimmer im OG

IHRE VORTEILE
viele Gestaltungsvarianten
- optionale Garage/Carport
- Grundrissänderungen möglich
- Terrassenüberdachung individuell planbar
SERVICE & BERATUNG
Kontaktieren Sie uns! Wir freuen uns auf Sie.
Tel: +43 2849 8332-0